Dom Śródmiejski w Krakowie to projekt, realizowany w obszarze charakteryzującym się zabudową o zróżnicowanej skali i formie. Budynek zaprojektowane przez pracownię MUS ARCHITECTS w nowoczesny sposób reinterpretuje miejską strukturę budowlaną, nadając jej oryginalny, artystyczny wyraz.
Dom Śródmiejski w Krakowie
Autor: MUS ARCHITECTS



Geometryczna forma między miastem a naturą
Choć zaprojektowany dom wyraźnie wyróżnia się na tle sąsiednich obiektów, pozostaje w dialogu z otoczeniem dzięki przemyślanej skali, linii oraz wysokości zabudowy nawiązującej do sąsiednich budynków. Projekt zakłada harmonijne połączenie nowoczesności i funkcjonalności, wyrażone przez abstrakcyjną, geometrycznie czystą formę bryły. Intrygująca relacja z istniejącą, bardzo zróżnicowaną zabudową sprawia, że dom staje się nie tylko miejscem zamieszkania, lecz także wyrazistym elementem miejskiego krajobrazu.
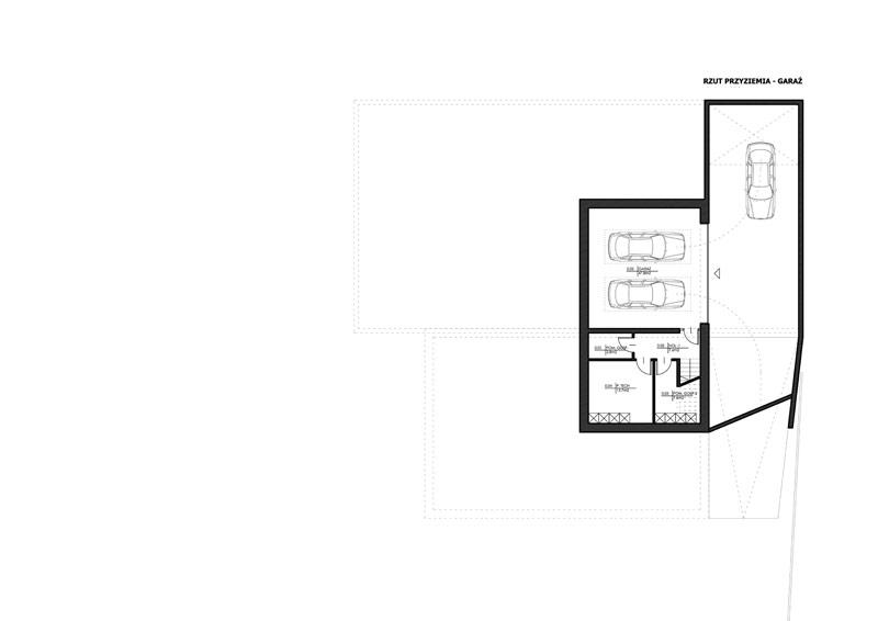
Budynek oferuje komfortową powierzchnię użytkową 350 m², rozłożoną na trzech poziomach. Całość składa się z dwóch kondygnacji naziemnych oraz jednej podziemnej. W części podziemnej zlokalizowano praktyczny garaż, przestronny hol oraz pomieszczenia techniczne i gospodarcze, zapewniające mieszkańcom wygodę codziennego użytkowania. Na parterze znajduje się strefa dzienna – serce domu. Odpowiednio zaprojektowany reprezentacyjny hol wejściowy z funkcjonalną garderobą wprowadza gości w przestronny salon połączony z jadalnią, gdzie można w pełni korzystać z przestrzeni do relaksu i spotkań towarzyskich. Kuchnia, częściowo otwarta na część dzienną, została uzupełniona o wydzieloną spiżarnię lub zamkniętą kuchnię pomocniczą, co pozwala na elastyczne dostosowanie funkcji do potrzeb domowników. Na tym poziomie znalazły się również pokój fitness lub gościnny, pralnia oraz toaleta dla gości, zapewniając komfort i prywatność wszystkim użytkownikom. Piętro przeznaczone jest na strefę nocną, gdzie znajdują się trzy sypialnie, każda z własnym zapleczem sanitarnym i garderobą. Taki układ gwarantuje intymność i wygodę mieszkańcom, pozwalając na swobodny wypoczynek po dniu pełnym wrażeń.
Strefowanie Działki
Działka została podzielona na kilka charakterystycznych stref, które tworzą spójną całość z domem. Przedpole wejściowe, częściowo otwarte na ulicę, tworzy przyjazny wjazd z zadaszonym miejscem postojowym dla dwóch samochodów. Weranda z zielenią, skalniakiem i drzewkiem wprowadza element natury już od progu, a taras dostępny z piętra nad podjazdem pozwala na relaks na świeżym powietrzu.
Dom został zaprojektowany tak, aby maksymalnie wykorzystać szerokość działki, jednocześnie pozostawiając miejsce na patio lub taras przy kuchni, techniczny przejazd do ogrodu oraz zjazd do garażu podziemnego. Przestrzeń ogrodowa bezpośrednio za domem stanowi naturalne przedłużenie strefy dziennej, a dzięki szklanej fasadzie i spójnej integracji materiałowej, granica między wnętrzem a zewnętrzem staje się niemal niewidoczna. W głębi działki, na stromym zboczu, znajduje się ogród dziki – skarpa porośnięta lokalną roślinnością, przez którą wiedzie wijąca się ścieżka, zachęcając do spacerów i kontemplacji natury.


Kompozycja Architektoniczna
Forma domu nawiązuje do modernistycznego „Architektonu” – abstrakcyjnej, białej bryły, która wchodzi w subtelną grę kompozycyjną z otoczeniem. Niższa część budynku nawiązuje do sąsiedniego domu, natomiast wyższa odpowiada skalą budynkowi po drugiej stronie działki. Otwory i wycięcia w bryle pełnią przede wszystkim funkcję plastyczną, nadając budynkowi charakter geometrycznej rzeźby. Dominuje tu odejście od form organicznych na rzecz czystych, geometrycznych kształtów, co podkreśla nowoczesny i konceptualny charakter projektu.
Przenikanie Przestrzeni
Struktura kompozycji została zaprojektowana tak, by umożliwić swobodne przenikanie przestrzeni między wnętrzem a otoczeniem domu. Synteza różnorodnych elementów technicznych w zintegrowane, wielkoformatowe płaszczyzny pozwala na zachowanie funkcjonalności przy jednoczesnej redukcji detalu. Akcentowane są wyłącznie te elementy, które są niezbędne do podkreślenia charakteru budynku.
Wnętrza
Wnętrza domu charakteryzują się funkcjonalnością i nowoczesnością. Zwarty, minimalistyczny język estetyczny oraz przemyślany układ przestrzeni zapewniają komfort i czytelność układu, dostosowanego do potrzeb mieszkańców. Dominuje biel – tynkowane ściany, posadzka z białej poliuretanowej żywicy oraz białe sufity tworzą spójną, jasną bazę. Uzupełnienie stanowi jasne drewno jesionowe oraz detale w odcieniach szarości i czarnym macie, a wolnostojące meble dopełniają całość kompozycji.
Dom został wyposażony w zaawansowane instalacje, takie jak klimatyzacja, rekuperacja, centralny odkurzacz, system inteligentnego domu oraz monitoring i alarm. To rozwiązania zapewniające mieszkańcom komfort, bezpieczeństwo i nowoczesny standard życia.
Dom Śródmiejski w Krakowie to projekt, który łączy nowoczesność, funkcjonalność i artystyczny wyraz w architekturze. Jego konceptualna, abstrakcyjna forma wyróżnia się na tle sąsiedniej zabudowy, jednocześnie pozostając w harmonii z otoczeniem. Projekt harmonijnie łączy kontakt z miejskim kontekstem oraz naturą – od uporządkowanego ogrodu po dziką skarpę w głębi działki. To propozycja dla osób ceniących indywidualność, komfort i nowoczesność w codziennym życiu.


















