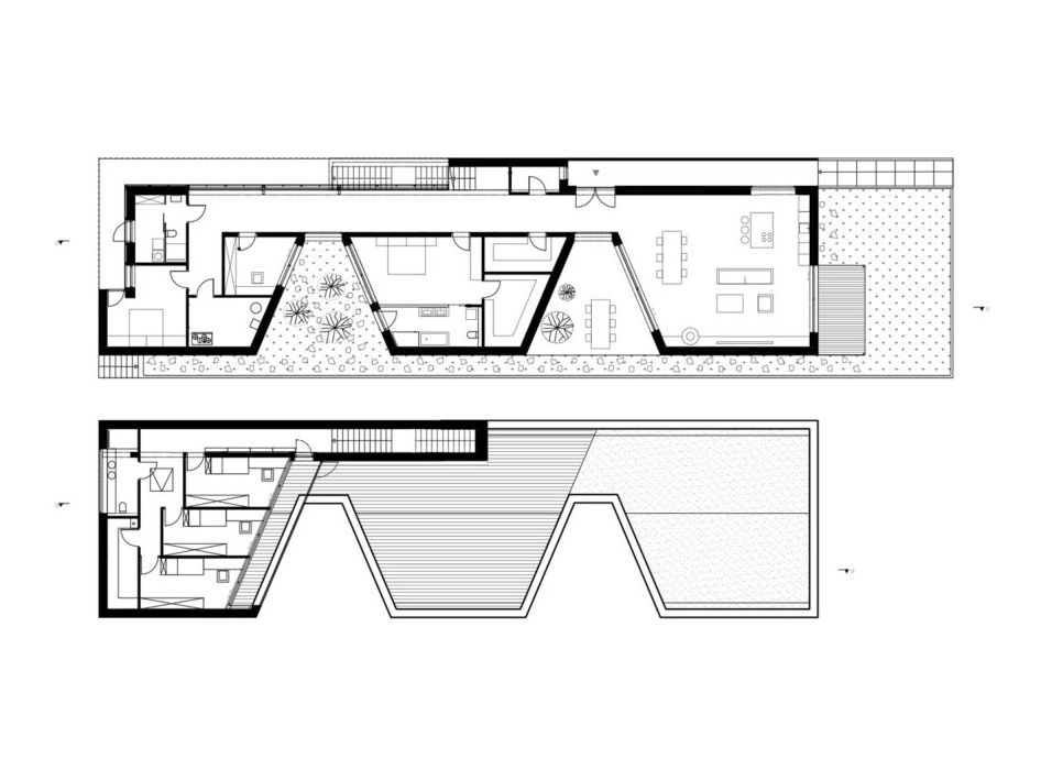
Dom zaprojektowany przez pracownię DD Architekci jest powrotem do katowickiego modernizmu. Jego minimalistyczna forma, pozbawiona banalnych ozdobników, wynika z kształtu i uwarunkowań działki zestawionych z potrzebami jego mieszkańców. Prosta, nietypowa bryła domu wyróżnia się na tle okolicznej zabudowy.
Dom w Katowicach
Projekt: DD Architekci
Zdjęcia: Tomasz Zakrzewski – Archifolio



Dom w Katowicach
– Oszczędność formy, prostota i wynikowość to cechy, które łączą projekty takich architektów jak: Karol Schayer, Tadeusz Michejda czy współcześnie Eduardo Souto de Moura, Alvaro Siza, Aires Mateus czy Alberto Campo Baeze. Ta trudna droga jest przeciwieństwem komercyjnego naśladowania designu i form projektów z innych stron świata, którym żywi się polska architektura. Filozofia ta pozwoliła nam zaprojektować minimalistyczną rezydencję w południowej części Katowic – mówią autorzy projektu z pracowni DD Architekci.
Mimo uniwersalnego języka wizualnego nie zabrakło lokalnego akcentu – detalu, który ma mówić o tożsamości i charakterze miejsca, w którym budynek został zaprojektowany. Dom nie ma modnego, często banalnego kształtu, a skupia się na ponadczasowych rozwiązaniach i czystości formy.
– Cieszymy się, że otwartość inwestora i zrozumienie naszej filozofii pozwoliło nam zaprojektować obiekt w duchu architektury, w którą wierzymy i staramy się tworzyć od ponad 10 lat – dodają architekci.


