Biura firmy Agrosemillas powstały w sercu agro-przemysłowego krajobrazu zdominowanego przez infrastrukturę logistyczną i rytm produkcji rolnej. Projekt pracowni Impepinable Studio tworzy elastyczne miejsce pracy, wykorzystując przetworzone kontenery morskie oraz proste systemy budowlane oparte na lokalnym rzemiośle. Architektura towarzyszy firmie w przejściu do nowego etapu – skoncentrowanego na innowacjach technologicznych i zrównoważonym rozwoju.
Agrosemillas Offices
Lokalizacja: El Peral, Cuenca, Hiszpania
Pracownia: Impepinable Studio
Autorka projektu: Gabriela Barrera
Współautor: César Plata
Zespół projektowy: Laura Currais, Matej Sevela
Inżynieria: Norta
Konstrukcja: gv408, www.gv408.com
Architekt techniczny: Miguel Ruiperez
Metaloplastyka: Oscar Remolino
Wykonawca: Cresver80
Powierzchnia użytkowa: 245 m²
Koszt: 410 000 €
Klient: Agrosemillas
Zdjęcia: DEL RIO BANI



Agrosemillas Offices
Obiekt znajduje się przy ruchliwej drodze krajowej, która oddziela go od niewielkiej miejscowości El Peral (660 mieszkańców). Wokół rozciągają się bezkresne pola uprawne – niemal brak tu odniesień na ludzką skalę. Krajobraz definiują przede wszystkim ogromne pojazdy, hale magazynowe i procesy produkcyjne. Do tego dochodzą ekstremalne warunki klimatyczne: silne kontrasty sezonowe i częste ulewy nawalne. Życie firmy podlega rytmowi zbiorów – od spokojniejszych okresów po fazy niemal ciągłej, intensywnej pracy.
W tym kontekście biura miały zapewnić komfortowe przestrzenie do koncentracji, spotkań i prac badawczo-rozwojowych – w środowisku, które na co dzień wypełniają hałas, pył i ruch ciężarówek. Budynek obsługuje bardzo zróżnicowanych użytkowników: od pracowników magazynowych po inżynierów i badaczy. Ich zadania i grafik zmieniają się w ciągu roku, dlatego kluczowa była maksymalna elastyczność przy jednoczesnym zachowaniu czytelnej organizacji przestrzennej i wyraźnej relacji z sąsiadującymi halami produkcyjnymi.
Nowy obiekt potraktowano jako okazję do architektonicznego wsparcia transformacji firmy. Agrosemillas, od lat związana z produkcją nasion, wchodzi właśnie w fazę mocno nastawioną na technologie i odpowiedzialność ekologiczną. Architektura świadomie wpisuje się w ten moment przejściowy – zachowuje ciągłość z dotychczasowym dziedzictwem firmy, ale jednocześnie wprowadza bardziej otwartą, młodszą i mniej formalną tożsamość. Najbardziej czytelnym gestem jest bezkompromisowe użycie firmowych kolorów – intensywnej zieleni i żółci – pokrywających elewacje. Fasady perforują nieliczne, duże okrągłe otwory, zabezpieczone ręcznie sterowanymi okrągłymi żaluzjami – niemal jak włączniki, które pozwalają budynkowi „otwierać się” lub „zamykać” na otoczenie.
Biura powstawały równolegle z ponad 4500 m² nowych hal produkcyjnych i magazynowych – dzieląc z nimi technologie budowy, materiały i wykonawców. Projekt świadomie oparł się na kompetencjach lokalnych pracowników: kowalu i hydrauliku z El Peral, cieślach szalunkowych z sąsiedniego miasteczka oraz ekipach przemysłowych, które od lat działają w regionie. Ta decyzja nie tylko ukształtowała rozwiązania techniczne, ale także wzmocniła celowo ascetyczny i „uczciwy materiałowo” charakter architektury.
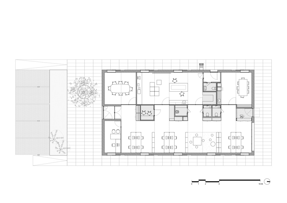
Przestrzennie budynek opiera się na czytelnym, powtarzalnym systemie. Cztery używane wcześniej kontenery morskie, otwarte wzdłuż dwóch dłuższych boków, spoczywają na betonowym cokole wspólnym z sąsiednimi halami. Ich układ tworzy charakterystyczny profil piły zębatej – sekwencję świetlików, które wprowadzają miękkie, równomierne światło dzienne głęboko do wnętrza i nadają przestrzeni zaskakujący klimat. Otwory skierowane są na północ, co gwarantuje stabilne i kontrolowane doświetlenie.
Prostopadle do tej sekwencji trzy pasy funkcjonalne porządkują plan w siatce: pas otwarty z przestrzeniami biurowymi typu open space, pas serwisowy oraz pas spotkań i laboratoriów. Wejścia rozdzielono zgodnie z procesami logistycznymi i pracowniczymi. Na połaciach dachowych między kontenerami zaplanowano wąskie pasy doświadczalnych upraw – fizyczne połączenie badań, produkcji i architektury w jednej logicznej całości.
Ostatecznie budynek jest precyzyjnie skonstruowaną, powściągliwą przestrzenią pracy – architekturą, która wyłania się z systemów, ze sposobu użytkowania i z ludzi, których wiedza i praca sprawiły, że stała się możliwa.

Autorka projektu: Gabriela Barrera, zdjęcie: Knu Kim

















