Dom w Kannur w południowych Indiach odzwierciedla filozofię projektową pracowni Zero Studio – cechuje go prostota i powściągliwość w doborze materiałów, faktur, wykończeń oraz wyposażenia. Zamiast dominować nad otoczeniem, budynek łagodnie wpisuje się w naturalne nachylenie działki, tworząc cichą, harmonijną całość. Bryła i jej wnętrza utrzymane są w spójnej, ziemistej palecie barw.
HAVEN
Projekt: Zero Studio, Kozhikode
Architekci: Ar. Hafeef PK (LATE) Ar. Hamid MM (LATE), Ar.Nidhinraj , Ar.Shabna
Lokalizacja: Kannur, Kerala
Zdjęcia: Ar.Abhimanyu


HAVEN House
Dom posadowiony został na wyniesionej działce jako wydłużona, liniowa bryła, budynek świadomie nie dominuje nad otoczeniem. Zamiast dominować nad naturalnym terenem, architekci wprowadzali ścianę z laterytu (skała osadowa), która pełni jednocześnie funkcję muru oporowego i głównej elewacji budynku od strony wschodniej. Ściana rozciąga się wzdłuż dłuższej części bryły mieszczącej strefę dzienną.
Dojazd i podejście do domu odbywa się od południa. Wiatrołap i frontowa elewacja utrzymane są w spójnej, ziemistej palecie: lateryt, szary tynk cementowy i biel nadają budynkowi naturalnego, osadzonego w krajobrazie charakteru. Spadzisty dach pokryty dachówką nawiązuje do tradycji miejscowego budownictwa, zachowując jednocześnie minimalistyczny wyraz.
Strefa wejścia to unosząca się płyta tarasu, ozdobiona tropikalną roślinnością i drewnianą ławką, który tworzy subtelny gest gościnności. Podwyższony charakter podejścia powraca przy dostępie na taras, gdzie przewidziano dodatkowe miejsca do siedzenia. Oferują one spokojne miejsce z widokiem na otoczenie i podkreślają subtelnie dialog rezydencji z działką. Warstwowe operowanie poziomami subtelnie wzbogaca doświadczenie przestrzenne, nie wprowadzając przy tym wizualnego zgiełku.
Skromne drzwi wejściowe prowadzą do głównej bryły, którą od wschodu otula laterytowa ściana, a od wschodu otwiera szeroki pas przeszkleń przesuwnych. Strefa dzienna – salon i jadalnia – rozwija się liniowo i kończy powiększoną kuchnią na północnym krańcu budynku, przeprojektowaną tak, by zapewnić większą ilość schowków i lepszą funkcjonalność zgodnie ze zmieniającymi się potrzebami rodziny.
Po prawej stronie znajdują się strefy prywatne – sypialnie otwierające się na stronę zachodnią, rozdzielone rodzinną strefą wypoczynkową oraz klatką schodową prowadzącą na pierwsze piętro. Układ jest celowo otwarty i zostaje zamknięty jedynie tam, gdzie wymaga tego prywatność. Zgodnie z życzeniem inwestorów kuchnia pozostaje częściowo przesłonięta względem głównej strefy dziennej, co utrzymuje wizualny spokój otwartego wnętrza.
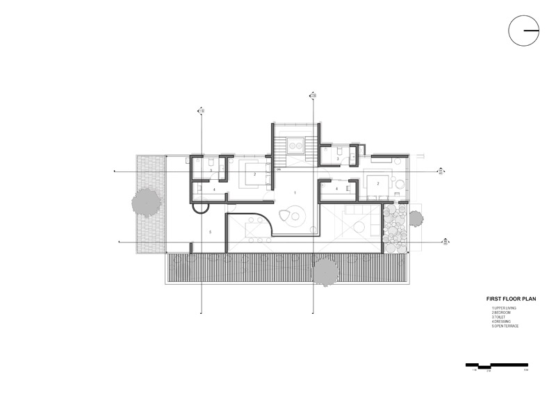
Na piętrze podest schodów wychodzi na dwukondygnacyjną przestrzeń głównego salonu i prowadzi do nieformalnej strefy wypoczynkowej. Na tym poziomie znajdują się również dwie nieco większe sypialnie oraz pomieszczenie gospodarcze. Paleta materiałów pozostaje ziemista i oszczędna – posadzki wykończone cementem, stonowane szare płytki oraz subtelne akcenty z kamienia w rodzinnym kąciku wypoczynkowym i narożniku na piętrze dodają ciepła i charakteru.
Duże, starannie rozmieszczone otwory okienne oraz perforowana wschodnia ściana zapewniają naturalną wentylację i wprowadzają do wnętrz dynamiczną grę światła w ciągu dnia. Dom oddycha powoli i świadomie, łagodnie wpisuje się w nachylenie terenu, na którym spoczywa.
Dzięki przemyślanemu doborowi materiałów, układowi funkcjonalnemu oraz głębokiemu szacunkowi dla miejsca i światła, dom w Kannur staje się bytem pozostającym w cichej harmonii ze swoim naturalnym otoczeniem.


























