Starożytni Grecy, Etruskowie i Rzymianie wprowadzili do swoich arystokratycznych rezydencji nowe rozwiązania architektoniczne znane jako compluvium, zaprojektowane w celu kierowania deszczówki do impluvium i oświetlenia przestrzeni wewnętrznych. Dom w Madrycie pracowni Fran Silvestre Arquitectos, podobnie jak starożytne domus, wykorzystuje centralny dziedziniec zapewniając prywatność w otoczeniu sąsiednich budynków, jednocześnie organizując przestrzeń wewnętrzną.
COMPLUVIUM HOUSE
Lokalizacja: Madryt, Hiszpania
Pracownia: Fran Silvestre Arquitectos
Główni architekci: Fran Silvestre, Carlos Lucas
Wnętrza: Alfaro Hofmann
Architekt techniczny: Consuelo Astasio
Konstrukcja: Estructuras Singulares
Wykonawca: Project Work S.L
Zespół: María Masià, Pablo Camarasa, Ricardo Candela, Estefania Soriano, Sevak Asatrián, José María Ibañez, Andrea Baldo, Angelo Brollo, Paloma Feng, Javi Herrero, Gino Brollo, Paco Chinesta, Anna Alfanjarín, Laura Bueno, Toni Cremades, Susana León, David Cirocchi, Neus Roso, Nuria Doménech, Andrea Raga, Olga Martín, Víctor González, Pepe Llop, Alberto Bianchi, Lucía Domingo, Alejandro Pascual, Pablo Simò, Andrea Blasco, Ana Bono, Claudia Escorcia, Laura Palacio, Carlos Perez, Jovita Cortejo, Ana de Pablo, Sara Atienza, Valeria Fernandini, Sandra Mazcuñán, Kateryna Spuziak, Julián Garcia
Zdjęcia i wideo: Jesús Orrico



Compluvium House
Struktura starożytnych rezydencji z compluvium usytuowanym w sercu budynku mieszkalnego (domus), początkowo miała także praktyczną funkcję usuwania dymu z wewnętrznych ognisk, ale z czasem ewoluowała, aby poprawić kluczowe aspekty, takie jak naturalne oświetlenie, wentylacja pomieszczeń i efektywne gromadzenie deszczówki. Z biegiem czasu compluvium zwiększało swoje rozmiary i złożoność, stając się kluczowym elementem estetyki i funkcjonalności domu, optymalizując komfort jego mieszkańców. System ten nie tylko odzwierciedlał zaawansowanie techniczne tych kultur, ale również podkreślał znaczenie wody jako centralnego zasobu w życiu domowym i rytualnym.
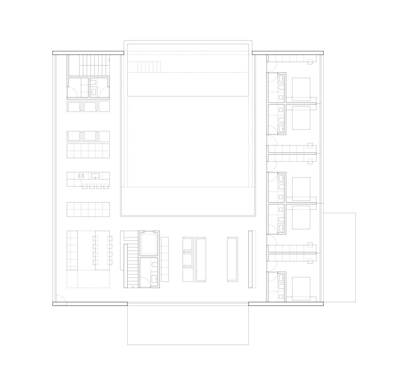
Inspirowani rezydencjami sprzed wieków architekci z hiszpańskiej pracowni przełożyli starożytne rozwiązania na współczesny język architektoniczny. W domu zlokalizowanym w centrum Madrytu, tradycja architektoniczna została zreinterpretowana, aby dostosować się do obecnych potrzeb. Pokoje i wspólne obszary zostały rozmieszczone wokół centralnego rdzenia, otwierając widoki na wewnętrzny dziedziniec i basen. Dom cieszy się otwartą i płynną przestrzenią, zachowując jednocześnie pomimo ogromnych przeszkleń poczucie intymności i prywatności.
Interakcja między wnętrzem a zewnętrzem wzbogacona jest obecnością tafli wody na dziedzińcu, która nie tylko ożywia minimalistyczne założenie, ale także stanowi wizualny i akustyczny punkt, organizujący całą przestrzeń. Tafla wody została usytuowana tak, aby wykorzystać widoki na sąsiednie domy, kadrując otaczający krajobraz, niebo i naturę wokół domu, a przy tym przypominając o oryginalnej funkcjonalności rzymskiego compluvium.
































