Realizacja tego domu stanowiła kluczowy etap większego założenia architektonicznego, w ramach którego wcześniej powstały dwa domy letniskowe. Wszystkie obiekty projektu pracowni SAN Architektura Rafał Oleksik łączy wspólna idea: harmonijne wpisanie architektury w naturalny krajobraz wzgórza, z rozległym widokiem na Karkonosze.
Dom w krajobrazie
Projekt: SAN Architektura Rafał Oleksik
Główny architekt: Rafał Oleksik
Lokalizacja: Radomice, Powiat lwówecki
Funkcja: Domy jednorodzinny
Konstrukcja: AM Projekty Konstrukcje
Instalacje sanitarne: Michał Baran Embe Studio
Instalacje elektryczne: Paweł Kóska
Powierzchnia użytkowa: 195,93 m2
Zdjęcia: Michał Drapała



Dom w krajobrazie
Jednym z pierwszych odkryć podczas prac projektowych było sąsiedztwo nieczynnego kamieniołomu, znajdującego się tuż obok działki. Ten charakterystyczny element krajobrazu stał się impulsem do nadania budynkom wyróżniającej się formy. Dom – podobnie jak dwa wcześniejsze obiekty – otrzymał bryłę inspirowaną ciosanymi blokami skalnymi, sprawiających wrażenie swobodnie rozrzuconych na stromym zboczu. Efekt ten uzyskano dzięki przekątnej kalenicy oraz rzutowi na planie kwadratu, co nadało budynkom dynamiczną, a jednocześnie zwartą formę.
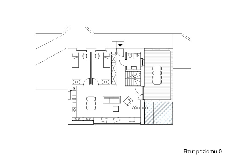
Bryła, stanowiąca przekształcenie naturalnych inspiracji w język architektury, stała się podstawą dalszych modyfikacji, które umożliwiły zaplanowanie funkcji budynku mieszkalnego zgodnie z założonym programem. Pomieszczenia rozmieszczono tak, aby z każdego możliwe było kadrowanie widoku na najatrakcyjniejsze elementy otoczenia. Kluczowym akcentem domu jest panoramiczne, sześciometrowe okno w części dziennej, z którego rozpościera się widok na Karkonosze. To właśnie w tej przestrzeni koncentruje się codzienne życie mieszkańców. Dzięki zastosowaniu głębokiego parapetu miejsce to stało się wielofunkcyjne – domownicy odpoczywają tu, a także pracują zdalnie. Część dzienna jest otwarta i połączona z antresolą.
Istotnym elementem projektu było podcięcie części podpiwniczonej, a jednocześnie wysunięcie jej poza obrys głównej bryły. Pozwoliło to na stworzenie tarasu dostępnego bezpośrednio z części dziennej na poziomie 0, a także drugiego, zadaszonego tarasu na poziomie –1. Przestrzeń ta łączy się z przylegającym ogrodem zimowym.
Budynek wzniesiono w technologii murowanej. Do wykonania elewacji i dachu wykorzystano modrzew syberyjski, który pod wpływem promieni UV zaczął patynować, dzięki czemu dom harmonijnie komponuje się z otaczającym krajobrazem oraz sąsiadującymi zabudowaniami. Cokół wykończono kamieniem, co dodatkowo podkreśla spójność zastosowanych materiałów.
Ważnym aspektem projektu było odpowiednie potraktowanie otoczenia. Właścicielom zależało na zachowaniu w jak największym stopniu istniejącej roślinności oraz na naturalnym ukształtowaniu ścieżek i dojazdów, które wykończono drobnym kruszywem.
W przypadku tej realizacji trafne okazało się stwierdzenie, że forma i funkcja podążają za krajobrazem. Forma podporządkowała się inspiracji i subtelnie wtapia się w naturalne otoczenie, natomiast funkcja – podążyła za widokiem.























