Położona na odludnym półwyspie nad krystalicznie czystym jeziorem, na którym obowiązuje zakaz używania motorówek, off-gridowy dom zaprojektowany przez biuro Dubbeldam Architecture + Design w dzikiej części Ontario, stanowi spokojną oazę dla pary z miasta, która kocha naturę. Przez cały rok spędzali oni weekendy, biwakując na tym terenie, zanim podjęli decyzję, gdzie i co zbudować. Ich celem było stworzenie miejsca silnie związanego z naturą – uniesionego wśród koron drzew, zaprojektowanego z myślą o dostępności i wielopokoleniowym użytkowaniu. Miała to być gościnna, całoroczna przystań idealna do spotkań z rodziną i przyjaciółmi.
Long Lake Cottage
Lokalizacja: Muskoka, Kanada
Projekt: Dubbeldam Architecture + Design
Zespół projektowy: Heather Dubbeldam, Andrew Snow, Krystal Kramer
Powierzchnia: 333 m2
Zdjęcia: Riley Snelling



Long Lake Cottage
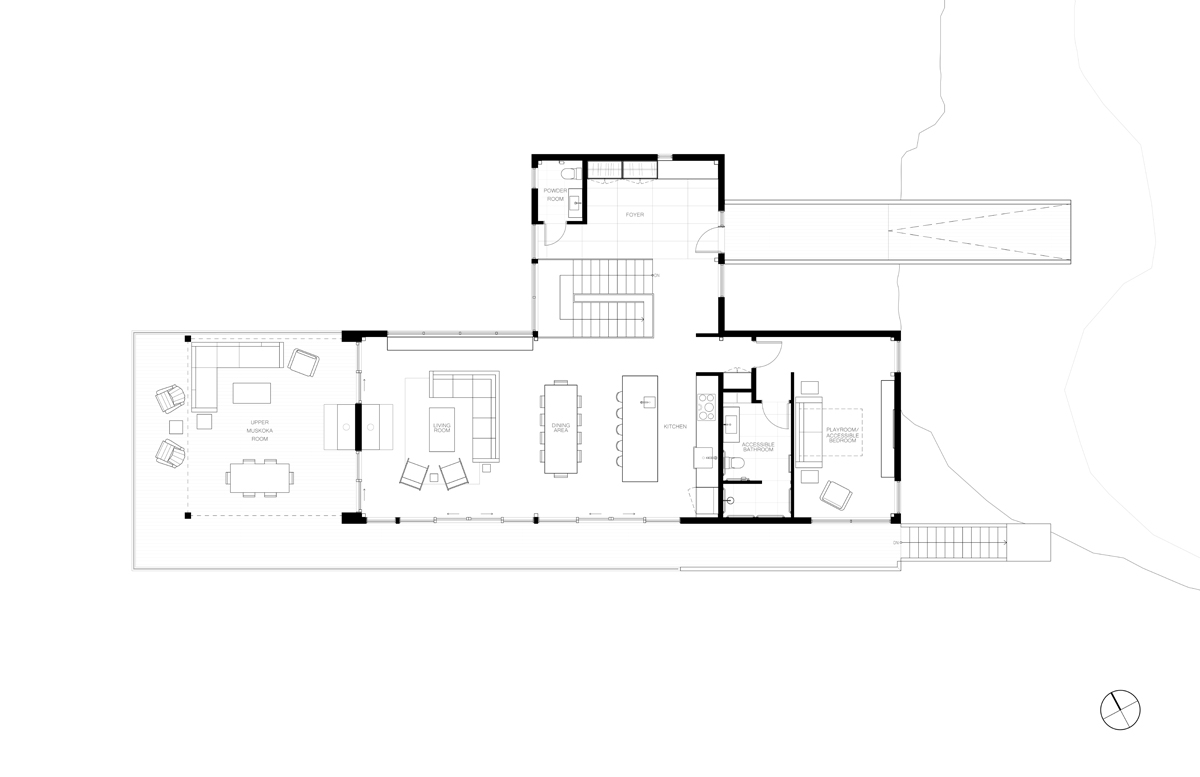
Dwukondygnacyjny budynek maksymalizuje widoki na otaczające jezioro i las, jednocześnie minimalnie ingerując w środowisko. Położony jest poniżej grzbietu odsłoniętej skały, dolna część domu jest niewidoczna od strony podejścia, natomiast na poziom górny prowadzi mostek. Główna przestrzeń mieszkalna znajduje się właśnie na górnej kondygnacji, realizując marzenie inwestorów o salonie, który „unosi się nad leśnym runem”.
Rozległe, panoramiczne okna i przesuwne drzwi otwierają się na duży górny taras, z ekspozycją na zachód i południe. Dzięki temu granica między wnętrzem a zewnętrzem niemal całkowicie zanika, a doświadczenie obcowania z naturą staje się jeszcze głębsze – zarówno dla właścicieli, jak i gości.
W sercu górnej kondygnacji znajduje się otwarta strefa dzienna z salonem i jadalnią, gdzie widoki na jezioro przeplatają się z koronami drzew. Centralnym elementem jest masywny kominek z lanego betonu, wokół którego ustawiono wygodne siedziska zachęcające do wspólnego spędzania czasu. Wbudowana, 5-metrowa ława okienna zintegrowana z miejscami do przechowywania oferuje dodatkowe miejsca do relaksu i podziwiania widoków. Kuchnia wyróżnia się stolarką z białego dębu zestawioną z kamiennymi blatami. Długi kuchenny półwysep ze zlewem barowym i licznymi miejscami siedzącymi subtelnie wydziela przestrzeń. Sufit z desek zapewnia akustykę i wprowadza do wnętrza przyjemne ciepło oraz naturalną fakturę.
Na niższej kondygnacji znajduje się pięć sypialni, z których każda otwiera się bezpośrednio na las dzięki oknom sięgającym od podłogi do sufitu oraz indywidualnym wyjściom na zewnątrz. Zapewnia to gościom prywatność i bliskie obcowanie z przyrodą. Główna sypialnia zwrócona jest na zachód i w pełni otwiera się na zewnątrz, a przyległa łazienka wyposażona jest w prysznic zewnętrzny, ze względu na rodzinne zamiłowanie do biwakowania. Szósta sypialnia wraz z łazienką, zlokalizowana na górnej kondygnacji, jest w pełni dostępna dla osób o ograniczonej sprawności ruchowej, dzięki czemu cała rodzina może komfortowo korzystać z domu.
– Zaprojektowaliśmy chatę tak, aby przestrzeń wspólna znajdowała się na górze, a sypialnie na dole – dzięki czemu udało się zachować naturalny profil terenu i zapewnić dostępność dla wszystkich członków rodziny – wyjaśnia Heather Dubbeldam, główna projektantka. – To nieco niekonwencjonalne rozwiązanie podkreśla głęboką więź domu z naturą: przestrzenie wspólne unoszą się w koronach drzew, a prywatne kryją się na poziomie leśnego runa.
Obie kondygnacje są przesunięte względem siebie, co pozwala na stworzenie dwóch dużych, wkomponowanych w bryłę budynku tarasów. Przedłużają one przestrzeń mieszkalną na zewnątrz, oferując możliwość relaksu i posiłków na świeżym powietrzu. Główny górny taras, przylegający do salonu, zapewnia zapierające dech widoki na las i wodę z trzech stron. Wyposażono go w rolety chroniące przed owadami oraz zewnętrzny kominek na drewno, który nawiązuje do wewnętrznego paleniska i pozwala cieszyć się pobytem na zewnątrz nawet w chłodniejsze miesiące. Dolny taras, zacieniony przez wystającą górną kondygnację i wtulony w odsłoniętą skałę, pozostaje przyjemnie chłodny latem dzięki właściwościom termicznym kamienia i przewiewom znad jeziora.
Całkowicie niezależna energetycznie chata jest zasilana przez dużą instalację fotowoltaiczną. Zbudowano ją z drewna pozyskanego w sposób zrównoważony, w tym z desek z pobliskiego tartaku. Drewno dominuje zarówno jako materiał konstrukcyjny, jak i wykończeniowy: elewację pokryto szarzejącym cedrem i sosną barwioną na antracyt, dzięki czemu budynek niemal znika wśród drzew. We wnętrzu jaśniejsza paleta – szczotkowana podłoga dębowa i olejowana – tworzy ciepłą, relaksującą atmosferę. Deski na suficie płynnie przechodzą z wnętrza na zewnątrz, podkreślając ciągłość materiałów i silną więź z krajobrazem.
W pełni przystosowana do warunków zimowych, Long Lake Cottage to znacznie więcej niż letnia ucieczka. To całoroczna przystań, w której można zwolnić tempo, żyć w zgodzie z naturą i w pełni zanurzyć się w zmieniających się porach roku, świetle i dźwiękach lasu oraz jeziora.




























