Loft w dawnej fabryce części lotniczych to oryginalne połączenie (post)industrialnej architektury z duchem modernizmu wczesnego XX wieku. Wnętrze zaprojektowane przez S K U L L studio opowiada historię wyimaginowanego bohatera, Globetrottera, który łączy fascynację przeszłością z wizją przyszłości.
Vanguard | Loft VNG 903
Projekt: S K U L L studio
Autorzy: Bet Orten, Matěj Hájek
Współpraca: Adéla Křížková
Wykonawca i zarządzanie: Dasar PR
Lokalizacja: Praga, Czechy
Powierzchnia: 133 m² + 48 m² parking
Klient: PSN
Zdjęcia: BoysPlayNice



Efektowny loft w dawnej fabryce części lotniczych
Modřany, dzielnica przemysłowa Pragi, stoi na progu nowej ery. Była fabryka części lotniczych stanowi idealną przestrzeń dla osób kreatywnych. Niegdyś centrum pracy dla tysięcy robotników, dzisiaj przekształciło się w popularne miejsce wypoczynku, pełne atrakcji i aktywności.
Wnętrze loftu w charakterystycznym budynku emanuje duchem wyimaginowanego bohatera — wizjonera, podróżnika w czasie, globtrotera, który z niezachwianą precyzją przemierza spiralę nowoczesności. Jego podróż nie ogranicza się jednak tylko do przeszłości.
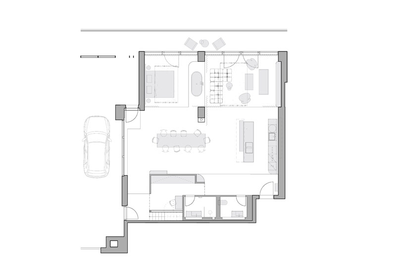
Serce przestrzeni stanowi rozległa centralna część dzienna. Ułożona osiowo mieści kuchnię z wyspą barową, przestronny stół jadalniany, mogący również pełnić funkcję stołu konferencyjnego oraz chowany projektor skierowany w stronę panoramicznych okien, oferujących widok na zadaszony parking (obszar szczególnie bliski kolekcjonerowi samochodów).
Życie wyimaginowanego bohatera koncentruje się na spotkaniach z inspirującymi ludźmi, łącząc służbowe spotkania z nieformalnymi. Z ostatnimi promieniami słońca, atmosfera loftu płynnie przechodzi z reprezentacyjnego charakteru do klimatu tętniącego życiem klubu.
Zawieszona podłoga pełni funkcję podwyższonej galerii — mostu, w którym mieści się także łóżko gościnne. Ukryta w jej wnętrzu przejściowa garderoba oraz osobne pomieszczenia, w tym prysznic i toaleta, zapewniają wygodę i prywatność.
Charakterystyczną cechą loftu jest przestronna, otwarta przestrzeń, gdzie ruchome ściany i zasłony pozwalają na elastyczne aranżacje, nie ograniczając przy tym poczucia przestronności i lekkości.

Atmosfera we wnętrzach
Strefa klubowa charakteryzuje się swobodną atmosferą, z wygodnymi sofami, stolikiem kawowym i stylową geometryczną biblioteczką. Tu formalność schodzi na dalszy plan. Przestronne okno i szklane drzwi prowadzą na werandę, efektywnie powiększając przestrzeń. Ciepłe czerwone światło neonowe podkreśla relaksującą atmosferę, przypominającą nocne przejażdżki przez nieznane, tętniące życiem miasta.
Otwartą przestrzeń loftu wzbogaca wanna umieszczona między salonem a sypialnią. Bohater aranżacji, Globetrotter, to bez wątpienia miłośnik komfortu. Owinąwszy się w szlafrok, wychodzi prosto z wanny przez szklane drzwi na balkon, gdzie rozkoszuje się kieliszkiem ulubionego Boulevardiera.
Projekt wnętrza został starannie przemyślany, by pomieścić różnorodne aktywności jego użytkowników. Brak stałych ścian w układzie otwartym daje przestronność, która sprzyja swobodnym myślom. Od czasu do czasu, introwertyczny odludek zamienia się w gospodarza spotkań towarzyskich. Możliwość organizowania wydarzeń w stylu klubowym jest zakodowana w DNA przestrzennego układu. Jadalnia, przestrzeń konferencyjna, bar i lounge łączą się w jedną organiczną całość. Goście znajdują się w samym sercu wydarzeń w każdej z tych stref. Dla prywatnych rozmów lub chwil w samotności, podwyższona galeria zapewnia dyskretną perspektywę, pozwalającą na ciche śledzenie wszystkich wydarzeń na niższym poziomie.
W hołdzie legendzie
Duch wyścigowej legendy, Eliški Junkovej, przenika cały projekt loftu. To hołd dla pionierskiej ery wyścigów samochodowych, która miała ogromny wpływ na atmosferę tego wnętrza. Lata międzywojenne XX wieku były czasem silnego rozwoju, gdy ludzie z nadzieją spoglądali w przyszłość, zgłębiając nowoczesne technologie i ignorując tradycyjne ograniczenia. Modernizm, futuryzm i funkcjonalizm splatają się tu w fascynacji czystymi liniami, energią ruchu, aerodynamicznymi formami i zaokrąglonymi krawędziami. Wybór materiałów — metalu, betonu, drewna, kamienia i szkła — to kolejny wyraz hołdu dla klasycznego modernizmu.























