Dom Siedmiu Drzew, zaprojektowany przez biuro Hersen Mendes Arquitetura, łączy przestrzenie wewnętrzne i zewnętrzne, oferując komfortową przestrzeń mieszkalną bez utraty więzi z otoczeniem. Projekt oparto na naturalnej roślinności i drzewach porastających działkę, które zostały dokładnie zinwentaryzowane, zachowane i włączone w koncepcję architektoniczną. Nazwa rezydencji oddaje hołd siedmiu drzewom, które wyznaczyły jej układ.
7 Trees House
Projekt: Hersen Mendes Arquitetura – Matheus Mendes and Anastácia Hersen
Zespół projektowy: Thiago Sales and Ana Catarina Trindade
Współpraca: Eng. Maurício Assunção
Lokalizacja: Jardim Botânico – Brasília – DF (Brazil)
Powierzchnia: 512 m²
Zdjęcia: Joana França



Dom w brazylijskim Cerrado
„Chcemy wejść do domu i czuć się, jakbyśmy wychodzili na zewnątrz” – takie było życzenie klientów i od takich wytycznych pracę nad projektem rozpoczęli brazylijscy architekci.
Wykorzystując naturalne nachylenie terenu, dom zlokalizowano na najbardziej płaskim obszarze, stopniowo dostosowując się do zróżnicowanych wysokości. W niektórych miejscach konstrukcja unosi się nad gruntem, tworząc dynamiczną grę przestrzeni w harmonii z krajobrazem. Priorytetem była przepuszczalność gleby, aby zachować naturalny przepływ wody i chronić lokalną faunę oraz florę. Podczas budowy zaobserwowano momenty zapylania, co podkreśliło symbiozę między budynkiem a środowiskiem.
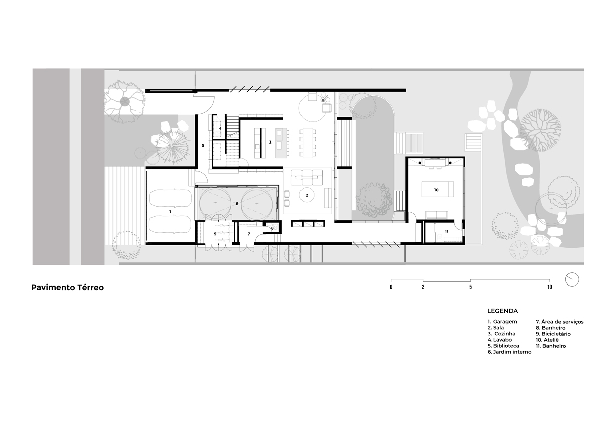
W najwyższym punkcie działki znajduje się pracownia właściciela domu, przeznaczona do aktywności artystycznych i krawieckich, całkowicie zawieszona na dwóch filarach w kształcie drzew. Łączy się z częścią wspólną poprzez kładkę z żółtymi metalowymi żaluzjami, które chronią przed słońcem i nadają budynkowi indywidualnego charakteru.
Oprócz integracji z naturą, projekt wykorzystuje lokalne materiały, takie jak ekologiczne cegły produkowane bez wypalania, co minimalizuje wpływ na środowisko i nawiązuje do otoczenia oraz tradycji regionu. Dom wyposażono także w system fotowoltaiczny, wspomagający zużycie energii.
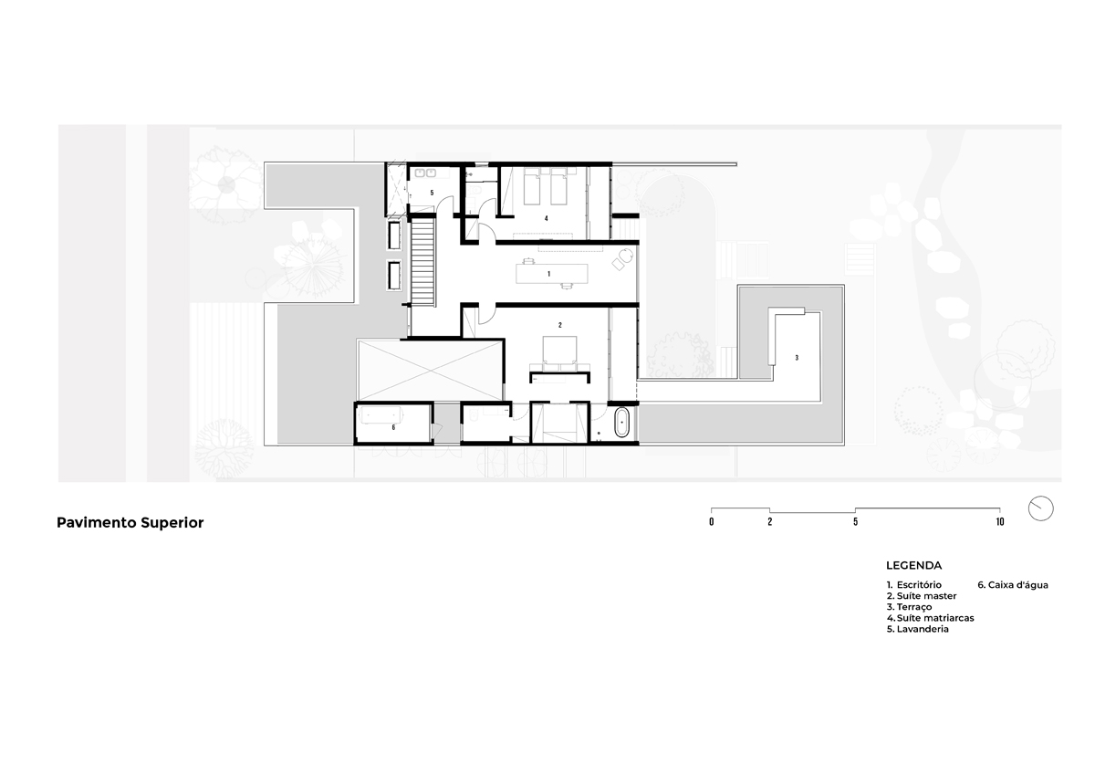
Inspirowany organicznymi przestrzeniami Franka Lloyda Wrighta, projekt zakłada płynne i wszechstronne wnętrza bez sztywnych granic. Wnętrza zaprojektowano z myślą o różnorodnej aranżacji mebli i dzieł sztuki. Naturalne materiały, takie jak podłogi z marmuru, w połączeniu z wykończeniami w odcieniach ziemi, zieleni i neutralnych barwach, tworzą ciepłą atmosferę domu. Charakterystycznym elementem jest ściana telewizyjna, zawieszona nad podłogą, która skrywa szafkę i jest uzupełniona kominkiem u podstawy. Z kolei wezgłowie łóżka w sypialni oraz blaty kuchenne, które nie sięgają sufitu, podkreślają płynność przestrzenną.
Centralnym elementem projektu stała się biblioteka. Zamiast być odizolowanym pomieszczeniem, rozciąga się na cały dom, z regałami rozmieszczonymi na parterze, umożliwiając wybór różnych miejsc do czytania. Regały wykonano ze stali Corten, tego samego materiału, co schody i drzwi do toalety.
W tym domu każdy detal został starannie zaplanowany, aby zrównoważyć naturę i architekturę, tworząc przestrzeń, która nawiązuje unikalną relację między domem a krajobrazem Cerrado.

















