Projekt nowoczesnej willi pod Lasem Łagiskim stanowi wyrafinowaną odpowiedź na specyficzne uwarunkowania geograficzne i urbanistyczne oraz potrzeby rodziny, która zamieszka w tym domu. Architektura domu zaprojektowanego przez biuro MUS ARCHITECTS wpisuje się w nurt nowoczesnego modernizmu, który w regionie śląskim ma silne tradycje, ale zostaje tutaj przefiltrowany przez współczesną wrażliwość minimalistyczną. Projekt nie stara się naśladować historycznej zabudowy, lecz tworzy nową jakość, stając się autonomicznym „kadrem” w krajobrazie.
Void & Mass Villa
Autor: MUS ARCHITECTS
Lokalizacja: woj. śląskie



Void & Mass Villa: Architektura syntezy
Monolityczna willa harmonijnie wtopiona w leśne otoczenie
Lokalizacja inwestycji na obrzeżach miasta, w bezpośrednim sąsiedztwie kompleksów leśnych, takich jak historyczny Las Łagiski, definiuje podstawowy wektor projektowy: poszukiwanie harmonii między surową, antropogeniczną formą a organicznym otoczeniem. Przedmieścia miasta, leżącego w centrum Górnośląskiego Okręgu Przemysłowego oferują enklawy ciszy i zieleni oraz kontekst sąsiednich budynków dwukondygnacyjnych zbliżonych charakterem do klasycznej „kostki Polskiej”. Projektowany dom musi godzić reprezentacyjność z intymnością oraz otwartością na wyselekcjonowane kadry leśnego otoczenia.
Idea
Fundamentem koncepcji architektonicznej jest operowanie czystą, białą bryłą, która ulega dekompozycji poprzez horyzontalne przesunięcie kondygnacji piętra względem parteru. Ten kluczowy zabieg nie jest jedynie zabiegiem estetycznym, ale wynika z głębokiej analizy funkcjonalnej i chęci zoptymalizowania relacji budynku z otoczeniem. Przesunięcie to generuje szereg korzyści od czysto kompozycyjnych po funkcjonalne. W strukturze domu kluczową rolę odgrywa autorskie podejście do relacji między masą a pustką.
– Nie traktujemy okien jako otworów w murze, lecz jako strategicznie rozmieszczone kadry. Każde przeszklenie zostało zaprojektowane z myślą o konkretnym widoku: na ścianę lasu, fragment nieba czy starannie zakomponowaną zieleń ogrodu – opowiadają autorzy projektu z pracowni MUS Architects.
Dzięki temu zabiegowi oraz odpowiedniemu dobraniu skali przeszklenia granica między wnętrzem a zewnętrzem ulega zatarciu, co wpływa na optyczne powiększenie przestrzeni życiowej i wprowadza do domu spokój płynący z natury.
Filozofia „Zacieranego Graniczenia”
Współczesna willa w ujęciu projektowym staje się instrumentem do percepcji krajobrazu. Zastosowanie wielkoformatowych, bezramowych przeszkleń pozwala na niemal całkowite wyeliminowanie barier wizualnych. W strefie dziennej salon staje się przedłużeniem tarasu, a ogród wnika do jadalni, zmieniając swój charakter wraz z porami roku. To podejście nawiązuje do japońskiej koncepcji „shakkei” – pożyczonego krajobrazu, gdzie dalsze plany natury stają się integralnym elementem kompozycji wnętrza.
Struktura budynku operuje kontrastem:
- Masa: Pełne, białe płaszczyzny ścian zapewniające intymność od strony podjazdu i sąsiadów.
- Pustka: Przeszklone płaszczyzny (otwarcia), podcienia i otwarte przestrzenie strefy dziennej, które „napowietrzają” bryłę.
Takie podejście pozwala na stworzenie domu, który z jednej strony jest bezpiecznym schronieniem, a z drugiej – otwartym pawilonem pozwalającym na pełne doświadczanie otaczającej przyrody.
Program funkcjonalny: Ergonomia i hierarchia przestrzeni
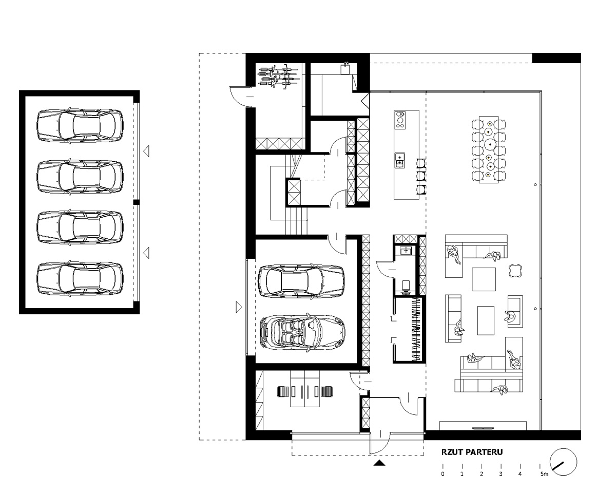
Projekt o łącznej powierzchni wynoszącej ponad 500 m² cechuje się czytelnym i racjonalnym podziałem na strefy użytkowe. Układ funkcjonalny został zaprojektowany tak, aby zaspokoić potrzeby współczesnej rodziny, łącząc przestrzeń do wspólnego życia, pracy oraz odpoczynku.
Parter budynku stanowi serce domu, zdominowane przez otwartą strefę dzienną. Jest to przestrzeń o wysokim stopniu elastyczności, gdzie poszczególne funkcje płynnie się przenikają. Na jego powierzchni zaplanowano reprezentacyjną strefę wejściową, gabinet, strefę dzienną z salonem, jadalnią i kuchnią, która została zaprojektowana jako nowoczesny warsztat kulinarny z dużą wyspą i przyległą spiżarnią, zaplecze techniczno-gospodarcze oraz kompleks garażowy (garaż w bryle domu oraz zewnętrzny). Przedsionek wejściowy od razu oferuje mieszkańcom i ich gościom wgląd w otwartą przestrzeń salonu, a cała strefa dzienna jest szeroko otwarta na ogród poprzez system przesuwnych przeszkleń.
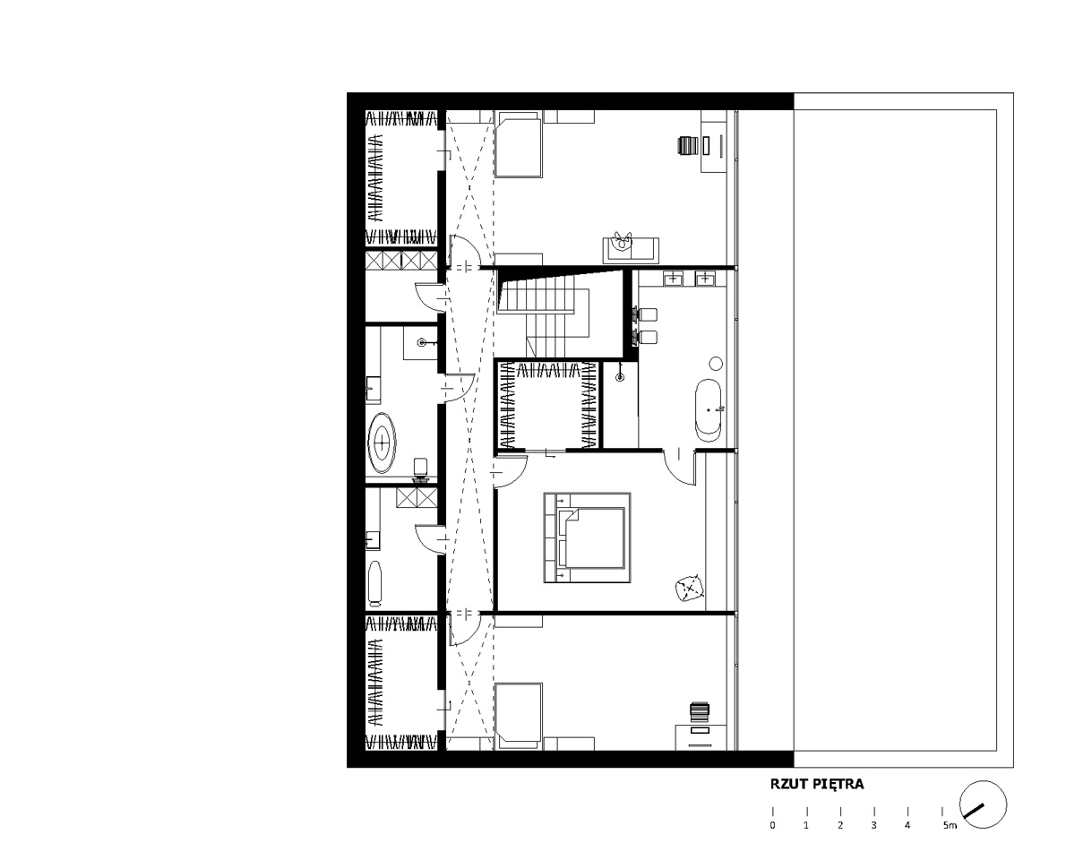
Piętro to prywatna enklawa domowników. Na wyższej kondygnacji architekci zaprojektowali sypialnię master w formie ekskluzywnego apartamentu z dedykowaną garderobą i przestronnym salonem kąpielowym, duże pokoje dla dzieci z własnymi garderobami oraz strefę serwisową (pralnię i dodatkową łazienkę).
Komunikacja między poziomami odbywa się poprzez reprezentacyjną klatkę schodową, która dzięki swojej formie staje się rzeźbiarskim elementem wnętrza. Korytarz, jak i strefy pokojów, znajdujące się na przedłużeniu korytarza doświetlono poprzez pas świetlików dachowych.



Język estetyczny: Synteza Japandi i modernizmu
Wnętrza willi zostały zaprojektowane w stylu japandi, który stanowi harmonijne połączenie japońskiej powściągliwości i umiłowania natury ze skandynawską funkcjonalnością i przytulnością. To podejście idealnie dopełnia minimalistyczną architekturę zewnętrzną, wprowadzając do środka ciepło i ludzką skalę.
We wnętrzach dominują biele, beże, miękkie szarości oraz naturalne odcienie drewna (dąb, jesion). Kontrast wprowadzają subtelne czarne akcenty w postaci opraw oświetleniowych, armatury czy ram luster. W aranżacji zastosowano materiały autentyczne, takie jak drewno o widocznym usłojeniu, matowy kamień, beton architektoniczny oraz naturalne tkaniny (len, wełna). Wyposażenie salonu i sypialni opiera się na prostych, horyzontalnych liniach, co sprzyja wyciszeniu i optycznie „podwyższa” pomieszczenia. W przestrzeni domu zrezygnowano z agresywnego światła górnego na rzecz warstwowego oświetlenia nastrojowego. Lampy z papieru ryżowego i dyskretne kinkiety budują atmosferę relaksu po zmroku.
Detal jako manifestacja jakości
W architekturze minimalistycznej to detal świadczy o klasie projektu. W willi projektu MUS Architects każdy element, od styku materiałów na podłodze po sposób osadzenia stolarki okiennej, został starannie przemyślany. Wykorzystanie filozofii wabi-sabi pozwala na docenienie piękna naturalnych niedoskonałości materiałów, takich jak struktura tynku czy unikalny rysunek drewna, co nadaje wnętrzu indywidualny charakter.



Architektura krajobrazu: Wielowarstwowa symbioza z lasem
Otoczenie domu nie jest traktowane jako dodatek, lecz jako „piąta elewacja”, która domyka kompozycję przestrzenną. Projekt zieleni ozdobnej został zaplanowany w sposób wielowarstwowy, tak aby zapewnić zmienność estetyczną przez cały rok i płynnie połączyć nowoczesną bryłę z dzikością pobliskiego lasu.
Główne założenia kompozycji roślinnej obejmują byliny i krzewinki tworzące gęste dywany zieleni, które „miękko” wykańczają styk budynku z gruntem (warstwa niska) oraz trawy pampasowe i ozdobne, które dzięki swojej lekkości wprowadzają ruch i dynamikę, kontrastując z monolityczną białą ścianą domu (warstwa średnia). Strategicznie rozmieszczone głazy i drzewa o ciekawym pokroju pełnią rolę naturalnych rzeźb. Pnącza i zieleń wysoka pozwalają na pionowe zazielenienie płaszczyzn, co dodatkowo zaciera granice między architekturą a naturą. Zastosowanie naturalnych materiałów w małej architekturze – drewna na tarasach, żwiru i kamiennych płyt na ścieżkach – sprzyja retencji wody i tworzy przyjazny mikroklimat. Ogród został zaprojektowany tak, aby zminimalizować konieczność intensywnej pielęgnacji, promując gatunki rodzime i odporne na lokalne warunki atmosferyczne.
Technika i struktura: Inżynieria białego monolitu
Zewnętrzna powłoka budynku to biała, tynkowana bryła o wysokim rygorze wykonawczym. Przesunięcie kondygnacji wymagało zaawansowanych rozwiązań konstrukcyjnych, w tym zastosowania wsporników żelbetowych, które pozwalają na „lewitację” piętra nad podjazdem.
Budynek został zaprojektowany w standardzie energooszczędnym, co w przypadku tak dużych przeszkleń wymagało precyzyjnych obliczeń i rozwiązań. Stolarka otworowa to systemy aluminiowe o wysokiej izolacyjności termicznej, wyposażone w pakiety trzyszybowe z powłokami niskoemisyjnymi. Wysunięte elementy bryły działają jak pasywny system zacieniania (brise-soleil), chronią salon przed nadmiernym przegrzewaniem w lecie, jednocześnie pozwalając na zyski cieplne zimą, gdy słońce jest niżej.
Biel elewacji, choć wymagająca, została uzyskana dzięki tynkom silikonowym z powłoką samoczyszczącą, co zapewnia długotrwałą świeżość i czystość monolitycznej formy. Garaż, jako niezależna bryła, powtarza te same rozwiązania materiałowe, tworząc spójny estetycznie zespół zabudowy.
Willa w Będzinie to realizacja idei nowoczesnego domu podmiejskiego. Projekt udowadnia, że radykalny minimalizm może być przyjazny mieszkańcom, jeśli zostanie wsparty przemyślaną funkcjonalnością i wysokiej jakości materiałami. Projekt ten stanowi manifest architektury, która jest zdecydowana ale nie krzyczy, zamiast tego współbrzmi z otoczeniem, oferując swoim mieszkańcom luksus przestrzeni, światła i ciszy.














