To mieszkanie powstało w wyniku całkowitej renowacji dwupokojowego lokalu architekta w funkcjonalistycznej kamienicy w praskiej Nowej Dzielnicy. Zarówno budynek, jak i samo mieszkanie zachowały wiele oryginalnych elementów z czasów budowy, czyli końca lat 30. XX wieku, jednak lokal był już w złym stanie technicznym i do nowego użytkowania konieczna była kompletna modyfikacja, w tym zmiana układu funkcjonalnego. Głównym założeniem projektu Martina Cenka było zachowanie jak największej liczby oryginalnych cech, ich odnowienie i dodanie współczesnej warstwy.
Functionalist Apartment with Pink Piggy
Pracownia: martin cenek architecture
Autor projektu: Martin Cenek
Lokalizacja: Praga, Czechy
Powierzchnia: 49 m²
Meble: Václav Furmánek
Elementy z kamienia: Interiér Remich
Ślusarka, biblioteka: Pavel Hlava – Ferra
Elementy szklane: JV glass
Zdjęcia: Alex Shoots Buildings



Functionalist Apartment with Pink Piggy
Koncepcja własnej przestrzeni to projekt pełen ograniczeń, zwłaszcza gdy chodzi o renowację istniejącego budynku. Bycie własnym klientem jest pod wieloma względami trudniejsze niż realizacja założeń sformułowanych przez zleceniodawcę.
– Moje mieszkanie znajduje się w budynku z końca lat 30. XX wieku, uczciwym wcieleniu architektonicznego modernizmu, klasycznej praskiej kamienicy z tamtego okresu, z elewacją wyłożoną płytkami i małymi mieszkaniami, zaprojektowanej przez architekta Ladislava Šimka i wybudowanej przez jego brata Jaroslava. A przysłowie „dzieci szewca chodzą boso” sugeruje, że rekonstrukcja mieszkania do ostatecznej formy zajęła prawie 10 lat. Pytania, które zadawałem sobie w trakcie procesu renowacji, skupiały się głównie na konflikcie między zachowaniem silnego ducha miejsca a stopniem wcielania śladu własnej tożsamości i inwencji. Które powinno zwyciężyć? Jak znaleźć równowagę? Czy cokolwiek może przeważyć? Czy wnioskiem nie jest to, że użytkownik naturalnie poddaje się i dostosowuje do duszy istniejącego budynku, który jedynie nieznacznie uzupełnia lub modyfikuje swoją pracą i obecnością? – zastanawia się Martin Cenek, architekt i autor oryginalnego projektu. – Wynik, a dokładniej sposób, w jaki ukończone dzieło wpłynęło na mnie, można opisać cytatem ze znanej książki Architektura szczęścia Alaina de Bottona: „…pasja do architektury może uczynić z nas estetów, ekscentryczne postaci, które muszą czuwać nad swoimi domami z czujnością strażników muzealnych, patrolując pokoje w poszukiwaniu plam, z wilgotną szmatką lub gąbką w dłoni.”

Architekt Martin Cenek
Przeprowadzono pełną architektoniczną „aktualizację”, obejmującą całe wyposażenie techniczne mieszkania, konstrukcję podłóg oraz wszystkie powierzchnie. Architekt postanowił odsłonić i oczyścić żelbetowy sufit w salonie (wcześniej zakryty podsufitką i tynkiem) i uczynić go oryginalnym elementem artystycznym. Odnowiono oryginalne okna, drzwi i wszystkie ich okucia, a oryginalny dębowy parkiet zastąpiono dokładną repliką.
Zmiana układu polega głównie na nowym wykorzystaniu oryginalnej kuchni oraz całkowitym wyburzeniu pierwotnej spiżarni i łazienki, które zastąpiono nowym blokiem meblowym zawierającym przestrzenie do przechowywania, ukrytą przestronną łazienkę i część kuchni. Ta nowa warstwa wykorzystuje tradycyjne materiały, ale w całkowicie nowy sposób. Powstała całkowicie czysta, minimalistyczna przestrzeń. Szczególną uwagę projektant poświęcił odpowiednim połączeniom oryginalnych elementów i detali z lat 30. XX wieku z nowymi projektami mebli i akcesoriów, a także wyborowi materiałów na wszystkie nowe – projektowane na zamówienie – meble wbudowane, które determinują użytkowanie przestrzeni i ich artykulację.
– Wyposażenie wnętrz obejmuje elementy o silnej osobistej historii, takie jak zestaw czterech krzeseł stołowych Thonet z domu moich pradziadków, fotel Thonet i lampa stołowa Anýž z lat 30. XX wieku, używane w biurze mojego pradziadka, funkcjonalistyczne krzesło rurowe Ez12 zaprojektowane w 1930 roku przez Karela Orta dla firmy Gottwald, lampy sufitowe czy kilka prac z tego samego okresu czeskiego rzeźbiarza Jaroslava Horejca, który był związany z naszą rodziną. Towarzyszą im raczej minimalistyczne współczesne produkty, takie jak sofa Fusion autorstwa studia Nendo. Stołek – różowa świnka, prezent od przyjaciół – w przedpokoju przypomina, by nie traktować siebie zawsze tak poważnie jako architekci – dodaje Martin Cenek.

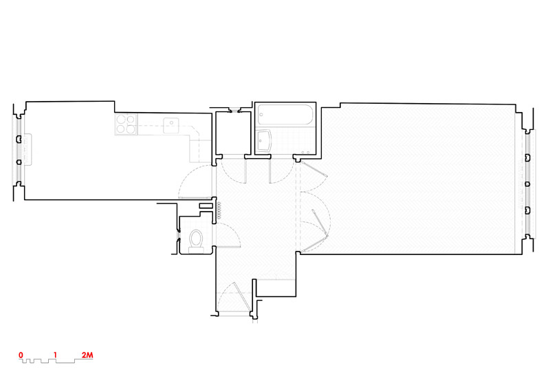
Rzut lokalu przed remontem

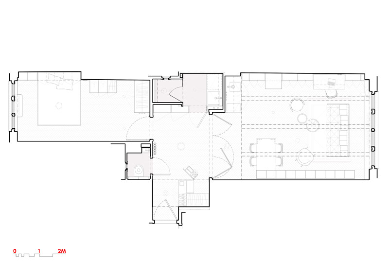
Mieszkanie po renowacji

Zdjęcia lokalu przed remontem













