Projekt Lane House powstał podczas pandemii, gdy dostęp do parków i innych przestrzeni publicznych był ograniczony. Oryginalny dom autorstwa pracowni CORE Cluster, za minimalistyczną elewacją z palonej cegły, skrywa nietypowo zaprojektowaną przestrzeń do ćwiczeń na świeżym powietrzu – strefę sportową z torem do biegania lub jazdy na rowerze, zintegrowaną z funkcjami mieszkalnymi.
LANE HOUSE
Lokalizacja: Bangkok, Tajlandia
Projekt: CORE Cluster
Główny architekt: Methaporn Chittrayanont
Powierzchnia: 850 m2
Zdjęcia: Chalermwat Wongchompoo



Lane House
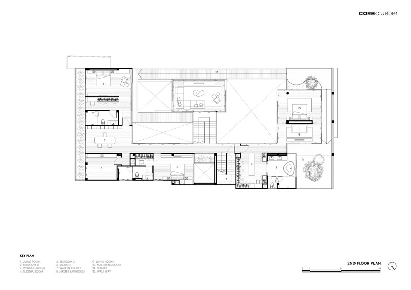
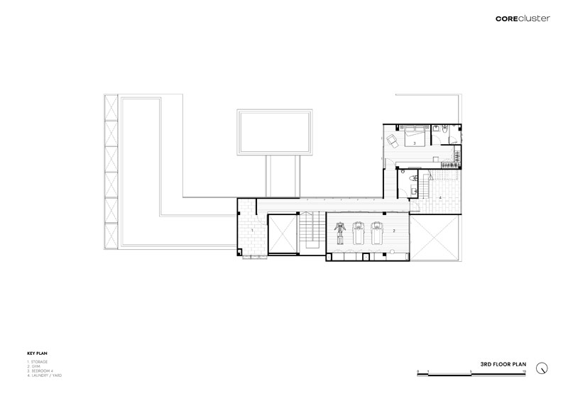
Ważnym zagadnieniem podczas pracy nad koncepcją domu było stworzenie optymalnego układu, który pozwoli zmaksymalizować długość toru biegowego, jednocześnie integrując go z 700 metrami kwadratowymi funkcji mieszkalnych na działce o powierzchni 640 metrów kwadratowych. Aby zapewnić odpowiednią długość toru, pomieszczenia zostały zaprojektowane w układzie w kształcie litery 'U’, rozmieszczonym wzdłuż krawędzi działki. Taka konfiguracja pozwoliła na wydłużenie toru, zintegrowanego z budynkiem. Wejście na poziomie gruntu prowadzi do rampy, która ciągnie się nieprzerwanie wokół domu, stopniowo wznosząc się do przestrzeni mieszkalnej na drugim piętrze, a następnie do głównej sypialni na najwyższym piętrze. Jedno okrążenie toru do jazdy na rowerze lub biegania odpowiada pętli o długości 200 metrów.
Centralna przestrzeń, wynikająca naturalnie z układu w kształcie litery 'U’, składa się z dziedzińca i salonu. Ta uniesiona przestrzeń mieszkalna, umieszczona w samym środku całego założenia, oferuje dodatkową powierzchnię do biegania oraz zapewnia wizualne połączenie z innymi funkcjami i dziedzińcem, gdzie zieleń dodatkowo wzbogaca odbiór wizualny domu. Wykorzystanie szkła na wszystkich ścianach salonu buduje poczucie „wspólnej” przestrzeni. Pomimo że salon znajduje się w oddzielnym budynku, jego funkcja i położenie ucieleśniają koncepcję „ogniska domowego” w architekturze mieszkalnej.
Ściany zwrócone w stronę dziedzińca są transparentne, aby zmaksymalizować wizualną dostępność każdej funkcji mieszkalnej. Projekt miał na celu połączenie aktywności wewnętrznych i zewnętrznych oraz zapewnienie odpowiedniej ilości światła dziennego w budynku.
Zewnętrzne ściany zwrócone w stronę otaczających terenów, gdzie w pobliżu znajdują się duży most i autostrada, są zamknięte, aby zapewnić mieszkańcom domu poczucie prywatności. Jednak są one wentylowane, aby dostosować się do gorącego i wilgotnego klimatu Bangkoku. Dom został zrealizowany z podwójną elewacją, wykorzystującą paloną, szarą cegłę jako główny materiał budowlany. Moduł dwóch cegieł ułożonych ukośnie względem siebie tworzy charakterystyczny wzór na elewacji, który filtruje napływające ciepło, zapewnia prywatność i generuje unikalny efekt gry światła i cienia. Dzięki zastosowaniu cegieł, materiału o niskich wymaganiach konserwacyjnych dom odzwierciedla naturalny proces starzenia.



































