Konkurs architektoniczno-urbanistyczny na opracowanie koncepcji programowo-przestrzennej przebudowy budynku starej elektrowni na potrzeby Galerii Arsenał oraz zagospodarowania fragmentu bulwaru nad rzeką Białą pomiędzy ulicami: Świętojańską i Elektryczną w Białymstoku
Wyróżnienie równorzędne II stopnia (4 miejsce)
Projekt konkursowy: NOW – Biuro Architektoniczne Sp. z o.o.
Data: Maj 2012
Lokalizacja: Białystok
Zespół autorski:
Andrzej Owczarek, Dariusz Ejbich, Bartosz Malinowski, Remek Strzelecki, Marta Dzierżawska
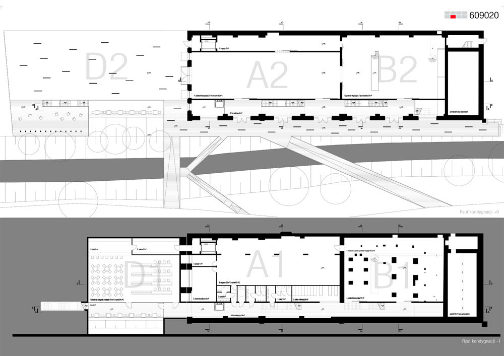
Opis koncepcji zagospodarowaniu terenu
Podstawą koncepcji urbanistycznej jest wyraźne zróżnicowanie północnego i południowego odcinka bulwaru wzdłuż rzeki Białej.
Na odcinku północnym gdzie bulwar stanowi przedpole zespołu budynkowego i terenowego elektrowni, głównym elementem kompozycyjnym jest zespół kładek tworzących jakościowo nową przestrzeń publiczną gdzie bulwar ograniczony jest jezdnią ul. J. K. Branickiego i ogrodzonym terenem parkingów.
Na odcinku południowym wzbogacono go zielenią niską, zespołami siedzisk, oświetleniem i małą architekturą.
Kładki integrujące z bulwarem budynek elektrowni wraz z terenem otwartych ekspozycji i imprez artystycznych oraz zlokalizowaną pod nim kawiarnią i mediateką stanowią wyrazisty sygnał nowej jakości przestrzeni dla Galerii Arsenał.
Użyte w balustradach płaszczyzny z blach stalowej lub cortenowej stanowią wraz z powierzchniami drewnianymi i szkłem główny architektoniczny wątek zarówno zagłębionej kawiarni z mediateką jak i ściany ze schodami podłużnego hall’u przebiegającego wzdłuż skierowanej do bulwaru otwartej dużymi przeszkleniami fasady elektrowni.
Zarówno hall, zewnętrzne wejście do kawiarni z mediateką, teren ekspozycyjny i kładki stanowią zintegrowaną kompozycję i nową przestrzeń publiczną w tej części bulwaru.
W tej części kompozycję oświetleniową stanowić będą podświetlenia zieleni, oświetlenie kładek z linii świetlnych w balustradach, oświetlenia w wykończonych drewnem i kostką granitową powierzchniach oraz iluminacja zewnętrzna i światło wewnętrzne z hall’u i pomieszczeń biurowych budynku.
W części południowej bulwaru przewiduje się zespoły siedzisk ze stojakami na rowery, koszami i oświetleniem oraz uzupełniającą zielenią niską.
Dostępność komunikacyjną do projektowanego zespołu będzie zapewniała komunikacja publiczna (autobusy w ul. J. K. Branickiego) i komunikacja indywidualna poprzez parkingi zarówno przy ulicy jak i na południowej części objętego opracowaniem terenu.
Na terenie działki 1780/8 przewiduje się nawierzchnię z kostki granitowej a przekrycia stropowe zagłębionej kawiarni i mediateki zapewniają na powierzchni możliwość ciężkiego ruchu samochodowego (parking dla samochodu ciężarowego i dojazd pożarowy dla wozu strażackiego).
Ze względu na uniwersalny charakter placu nie zastosowano na tej powierzchni stałych oznaczeń miejsc parkingowych.
Koncepcja architektoniczna
Przy docenianym coraz powszechniej potencjale rzeczywistego, autentycznego charakteru obiektów poprzemysłowych i dotychczasowym działaniu Galerii Arsenał dobrze wykorzystującym
to unikalne środowisko architektoniczne za główny cel koncepcji uznaliśmy spełnienie oczekiwań programowych przy jak najpełniejszym zachowaniu aktualnego stanu i układu przestrzennego obiektu.
Głównym elementem historycznego układu elektrowni jest zrealizowany w dwóch etapach jednotraktowy podłużny układ głównej hali z podpiwniczeniem.
Dla zachowania w jak największym stopniu tego układu zaprojektowano wąski, długi hall wzdłuż silnie przeszklonej elewacji od ul. J. K. Branickiego, który wiąże i integruje :
– adaptowaną część północną z piwnicą i pełnej wysokości salą na parterze
– przebudowaną część południową z piwnicą, nowym układem parteru i jednej pełnej oraz drugiej fragmentarycznej kondygnacji ponad
– nową, zagłębioną pod placem przylegającym od południa częściowo odsłoniętą kondygnacją
Nowy hall i nowoprojektowane kondygnacje wykorzystują otwory i oświetlenie naturalne budynku od strony wschodniej i południowej likwidując dotychczasowy mankament jakim było zbytnie doświetlenie stref ekspozycji.
Liniowy układ pozwala także w maksymalnym stopniu w zależności od strategii działania na zintegrowane lub oddzielne funkcjonowanie ośmiu autonomicznych przestrzeni programowych.
Uznaliśmy, że jakiekolwiek stałe układy poprzeczne znacznie ograniczą możliwość dowolnego tworzenia oddzielnych lub zintegrowanych przestrzeni ekspozycji i imprez artystycznych.
Potrzebne poza hall’em większe przestrzenie, np. na wernisaże, mogą być jak to się obecnie najczęściej zdarza aranżowane jako element układu ekspozycji.
Koncepcja funkcjonalno – przestrzenna
Podłużny, na pełną wysokość budynku hall ze schodami windą osobową zapewnia dostęp do wszystkich zespołów funkcjonalnych w podziemiu :
– zespołu pracowni z zapleczem socjalnym, magazynów, szatni i WC (A1)
– przestrzeni ekspozycyjnej (B1)
– kawiarni z mediateką (D1)
na parterze :
– przestrzeni ekspozycyjnej i magazynowej (A2)
– przestrzeni ekspozycyjnej (B2)
na piętrze :
– części biurowej i audytorium z foyer i WC (A3)
– przestrzeni ekspozycyjnej (C1)
na drugim piętrze :
– części biurowej
Oddzielnym zintegrowanym układem jest dźwig towarowo – usługowy integrujący strefę dostaw (A2) z magazynem w piwnicach (A1).
Zespół ten może obsługiwać wszystkie przestrzenie ekspozycyjne.
Koncepcja konstrukcyjno – materiałowa
W części adaptowanej (B) przewiduje się częściowe wzmocnienie stropu nad piwnicą z pozostawieniem jego dotychczasowego charakteru.
W części przebudowywanej przewiduje się układ trzytraktowy ze ścianami lub słupami żelbetowymi posadowionymi na palach wierconych, ze schodami i przekryciami w traktach bocznych (ok. 3,5 m) żelbetowymi molitycznymi oraz przekryciami traktu środkowego z płyt żelbetowych wstępnie sprężonych lub żelbetu monolitycznego sprężonego.
Analogiczne konstrukcje w zagłębionej części na południe od istniejącego budynku.
Projektuje się remont i docieplenie dachu.
Posadzki : w hall’u – klepka drewniana przemysłowa, w przestrzeniach ekspozycyjnych i magazynowych – posadzki betonowe uszlachetnione lub istniejące (B2) po renowacji.
Ślusarka okienna – aluminiowa z zachowaniem, poza drzwiami wejściowymi i ewakuacyjnymi, podziałów historycznych.
Koncepcja instalacyjna
Proponuje się zamianę ciepłociągów na preizolowane i zakopane pod powierzchnią terenu.
W miejsce proponowanej do wyburzenia dobudówki węzła cieplnego projektujemy odtworzenie węzła w piwnicy części C.
W budynku przewiduje się instalacje :
– wod-kan
– ogrzewania
– wentylacji i klimatyzacji
– energetyczne : siły i oświetlenia
– sieci logiczne
– instalacje dozoru i kontroli dostępu
Koncepcja wnętrzowo – ekspozycyjna
Przewiduje się w częściach elementów zewnętrznych oraz jako okładzinę nowobudowanej ściany hall’u pokrycie blachą stalową lub cortenową.
Uznaliśmy, że połączenie stali, drewna i szkła najlepiej połączy tradycje tradycję miejsca ze współczesnym kształtowaniem architektonicznym.
Okładziny stalowe mogą być też wykonane z odpadowych blach w formie rzeźbiarsko zaprojektowanego reliefu.
Części adaptowanych ścian, stropów i posadzek proponujemy po niezbędnych naprawkach i uzupełnieniach pozostawić w obecnej formie, fakturze i charakterze.
Pozwoli to na pozostawienie obecnej, niepowtarzalnej atmosfery betonowego labiryntu
w piwnicach części północnej (B1) czy wspaniałej przestrzeni hali północnej (B2) gdzie wyremontowane, dopuszczone do ruchu suwnice (istniejąca i przeniesiona z części południowej) mogłyby służyć zarówno w sensie roboczym jak i estetycznym do budowania scenografii koncertów czy multimedialnych ekspozycji.














