Surowy beton, podwieszane stalowe schody, czarne „boxy” i inne indywidualnie zaprojektowane rozwiązania definiują wnętrze trzypiętrowego loftu w Pradze. Innowacyjne technologie łączą się z odważnym designem, tworząc przestrzeń, która zachwyca na każdym kroku. Projekt studia OOOOX zaprasza do odkrywania unikalnego stylu i funkcjonalności, gdzie każdy detal opowiada historię śmiałej wizji.
Hrebenky
Studio: OOOOX
Autorzy: Radka Valova, Petr Vlach
Lokalizacja: Praga, Czechy
Współpraca: JustyNabytek
Oświetlenie: Delta Light
Grafika i sztuka: Martin Stranka, Jan Gemrot
Powierzchnia: 170 m²
Zdjęcia: Martin Zeman


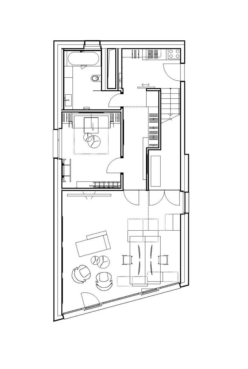
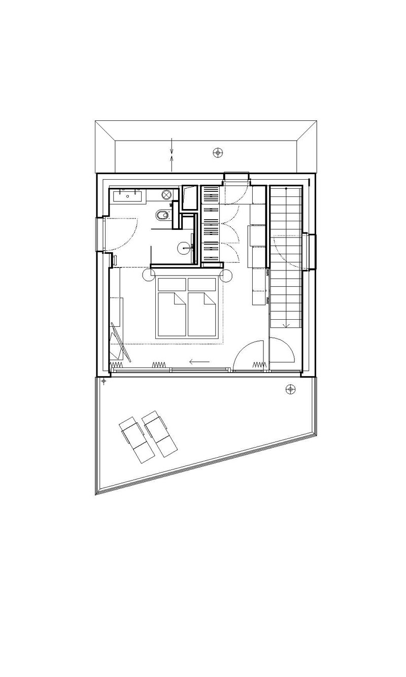
Loft, który przypomina dom
Klient zgłosił się do projektantów odpowiednio wcześniej, a deweloper wykazał się niezwykłą elastycznością wobec licznych ingerencji projektu w strukturę realizowanego obiektu. Dzięki temu udało się stworzyć coś naprawdę nietuzinkowego. Odsłonięte betonowe konstrukcje, rozciągające się przez wszystkie trzy piętra, stały się centralnym elementem całej przestrzeni.
– W trakcie procesu budowlanego konsultowaliśmy z klientami pozostawienie surowych betonowych powierzchni. Z entuzjazmem przyjęliśmy fakt, że klienci docenili oryginalną konstrukcję budynku, co pozwoliło nam wprowadzić do wnętrza niezwykle intrygującą i charakterystyczną strukturę – opowiadają autorzy projektu ze studia OOOOX.
Technologie i indywidualne rozwiązania
Pomimo odsłonięcia wielu elementów konstrukcyjnych, architekci sprytnie przeprojektowali układ, aby kanały wentylacyjne znalazły się w podwieszanych sufitach na niższych piętrach, z wylotami poprowadzonymi przez cokoły mebli. Dodatkowym atutem jest zsyp na pranie, który obejmuje wszystkie trzy piętra – rozwiązanie możliwe do zrealizowania tylko na etapie projektowania, przed rozpoczęciem budowy. Co więcej, całe mieszkanie wyposażono w rozwiązania inteligentnego domu.
Oryginalny detal
W salonie dominuje ściana ze stalowych prętów z podwieszanymi schodami. Każdy stopień wykonano z cienkich stalowych „ostrzy” pokrytych drewnianą okładziną. Montaż schodów wymagał ścisłej koordynacji trzech ekip jednocześnie, co zaowocowało stworzeniem całkowicie unikalnej konstrukcji.
Aby podkreślić charakter łazienek, architekci zdecydowali się na mosiężne krany, które doskonale współgrają z ciemnymi płytkami wielkoformatowymi. Kluczowa była tu współpraca z deweloperem, która umożliwiła zastosowanie luksusowych kranów, z elementami podtynkowymi zamontowanymi już na etapie budowy, co pozwoliło uniknąć dodatkowych prac rozbiórkowych. Dzięki temu w jednej z łazienek zainstalowano kran sufitowy.
Czarne boxy
Każde piętro ma swój własny „box” – przestrzeń, w której czerń odbija się w podłodze, ścianach i suficie. Jeden z nich to czarna kuchnia z efektowną okładziną z kamienia i drewna. Drugi czarny box znajduje się w sypialni, gdzie łóżko wyposażono w wyrafinowane schowki oraz biblioteczkę przy wezgłowiu. Trzeci box mieść pomieszczenie gabinetu..
Meble na zamówienie
Wszystkie meble, z wyjątkiem sofy, zostały wykonane na zamówienie. Ciemne kolory drewna mebli i okładzin schodów zapewniają głęboki kolor. Meble uzupełniają stalowe elementy, takie jak stojak na winyle czy stoliki boczne. W sypialni garderoba łącząca stal i szkło zawiera szklane witryny, w których eksponowane są ulubione przedmioty właścicieli mieszkania, takie jak kapelusze czy torby.





























