Villa Sidonius to architektoniczny i technologiczny eksperyment przypominający stalową kładkę umieszczoną na stromym zboczu, obróconą w kierunku zarówno najlepszych północnych widoków, jak również południowego słońca.
Dzielnica willowa w Černošicach to spektakularna kolekcja unikalnych domów jednorodzinnych położonych u północnych i zachodnich stoków wzgórza Babka, które wyróżniają się w krajobrazie, gdy zbliżamy się drogą od strony Pragi. Historia tej okolicy sięga początków XX wieku, dlatego można tu znaleźć wille secesyjne oraz budynki z okresu I Republiki. Po 1989 roku Černošice ponownie stały się popularnym miejscem na budowę reprezentacyjnych domów. Obszar zabudowy nie jest definiowany jednym stylem architektonicznym, lecz raczej wielkością i okazałością budynków. Usytuowane na stromych działkach domy górują nad ścieżką wykutą w zboczu, otoczoną murami oporowymi ogrodów. Villa Sidonius zrealizowana według projektu pracowni Stempel & Tesar architekti miała być kolejnym wyjątkowym elementem tego krajobrazu.
Villa Sidonius
Projekt: Stempel & Tesar architekti
Główni architekci: Ján Stempel, Jan Jakub Tesař
Lokalizacja: Kraj środkowoczeski, Czechy
Powierzchnia użytkowa: 294 m²
Architekt krajobrazu: Vladimír Sitta
Kierownik projektu: Aleš Herold
Konstrukcja: Valbek [Jiří Chodora and Jan Vesecký]
Osłony przeciwsłoneczne: APAGON
Zdjęcia: Filip Šlapal oraz Fotes



Villa Sidonius
Posesja, na której znajduje się nietypowe willa, leży po północnej, zacienionej stronie terenu i należy do najbardziej stromych oraz najwyższych w okolicy. Taka lokalizacja niesie za sobą zarówno zalety, jak i wyzwania. Największym atutem działki jest bez wątpienia piękny widok na dolinę, pobliskie wzgórza oraz panoramę Pragi w tle. Z tego powodu architekci dążyli do tego, aby ten widok był dostępny z każdej przestrzeni mieszkalnej pod jak najlepszym kątem. Północne zbocze cierpi jednak na brak słońca, które przez większą część dnia oświetla jedynie najwyższą część posesji – trudno dostępną ze względu na strome nachylenie. Architekci musieli więc zmierzyć się z wyzwaniem – jak zbudować dom w najwyższym miejscu działki, zapewniając jednocześnie łatwy dostęp.
Plan eliminujący te niedogodności, a jednocześnie maksymalizujący zalety posesji, opierał się na koncepcji „domów wiszących”. Zwycięską formą stała się konstrukcja przypominająca most na filarach. Budynek wygląda jak stalowa kładka umieszczona na stromym zboczu, obrócona w stronę najlepszych północnych widoków i południowego słońca.
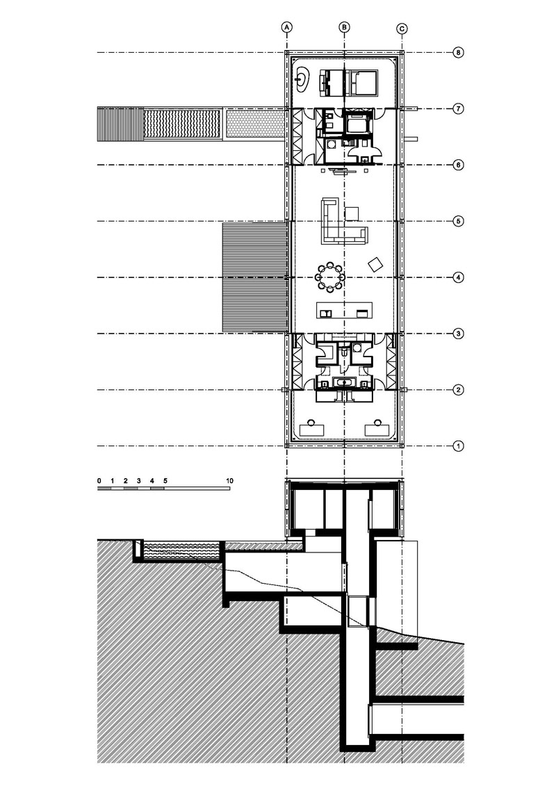
Prefabrykowana stalowa konstrukcja składa się z zewnętrznych profili nośnych HEB 300, które rozciągają się na długość 18 metrów między monolitycznymi żelbetowymi filarami, oraz wewnętrznej struktury konstrukcyjnej z profili IPE 160, które stanowią szkielet nośny dla okien, dachu i podłóg.
Budynek jest eksperymentem strukturalnym, architektonicznym i technologicznym. Nie było ani przestrzeni, ani potrzeby, aby zaprojektować dom w tradycyjny sposób. Celem było znalezienie rozwiązań przekraczających granice i testowanie najnowszych technologicznych produktów na rynku, takich jak szwajcarskie okna air-lux z opatentowanymi uszczelkami wspomaganymi powietrzem oraz system ogrzewania i chłodzenia z pompami ciepła, które zapewniają komfortowy klimat wewnętrzny przez cały rok.
Do budynku wchodzi się przez podziemny tunel z garażu, gdzie znajduje się również studio i siłownia. Tunel prowadzi do podstawy jednego z filarów, skąd winda zabiera mieszkańców na poziom mieszkalny, mijając po drodze przystanek pośredni z dostępem do pomieszczenia technicznego. Sercem domu jest przytulny salon z kuchnią i jadalnią. Stąd można wyjść na taras od strony południowej, który łączy dom z zazielenionym terenem oraz słoneczną górną częścią ogrodu, w której znajduje się basen. Wystające części „mostu” skrywają dwa różne światy: na jednym końcu znajdują się pokoje dzieci, na drugim sypialnia główna z łazienką i widokami.
Ścisła współpraca z architektem krajobrazu Vladimírem Sittą doprowadziła do zagospodarowania zbocza łupkiem, brzozami i innymi elementami harmonizującymi z projektem budynku.
Dom odzwierciedla unikalny proces twórczy, który obejmował nie tylko architektów, ale także szeroki zespół specjalistów zajmujących się projektowaniem i produkcją poszczególnych elementów budynku. Wyjątkową rolę odegrał także właściciel domu, którego zaangażowanie w cały proces przygotowania i budowy miało znaczący wpływ na końcowy rezultat.

Autorzy nietypowego projektu z pracowni Stempel & Tesar architekti

























