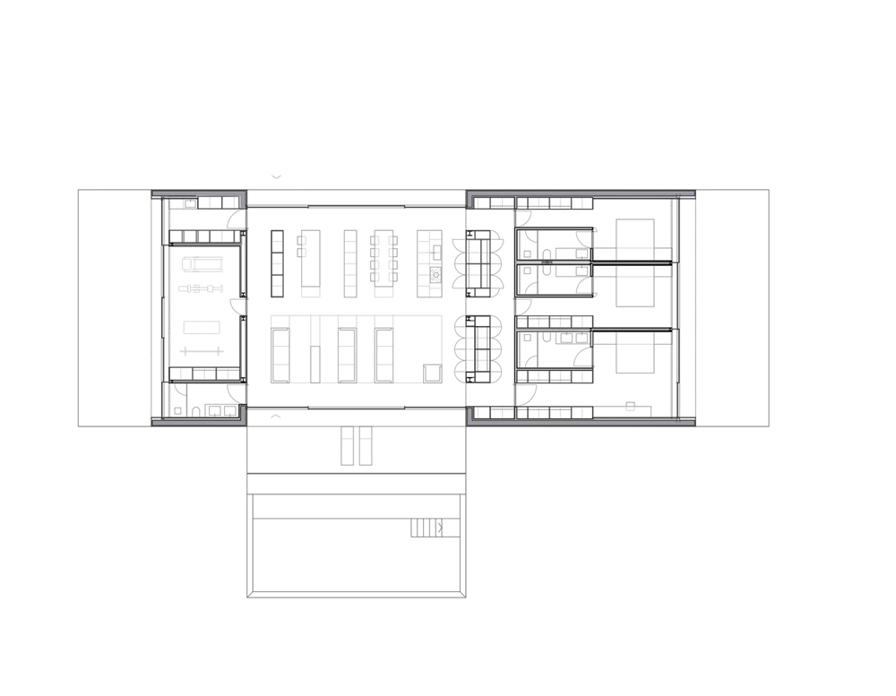
Kształt Cano House odzwierciedla układ funkcjonalny wewnątrz. Program luksusowej willi w Alicante tworzą trzy wyraźnie odrębne strefy – przeszklona na przestrzał przestrzeń dzienna, cześć nocna oraz pomieszczenia przeznaczone do treningu i aktywności sportowej. Minimalistyczna bryła projektu studia Fran Silvestre Arquitectos to prosta, geometryczna forma skomponowana z trzech bloków, mieszczących każdą ze stref.
Cano House
Lokalizacja: Alicante, Hiszpania
Pracownia: Fran Silvestre Arquitectos
Zespół projektowy: Fran Silvestre, Carlos Lucas
Projekt wnętrz: ALFARO HOFMANN
Deweloper: Gaspar Sánchez Cano
Architekci techniczni: Enrique Alario Catalá
Konstrukcja: Windmill Structural Consultants
Wykonawca: BUES SIMON GROUP
Powierzchnia: 312,22 m²
Zdjęcia i wideo: Jesús Orrico



Cano House
Koncepcja domu opiera się na logice programu funkcjonalnego oraz specyficznej lokalizacji działki wzdłuż jednej z głównych alei Alicante. Budynek sytuowany jest przy zachodniej granicy działki. Takie położenie pozwoliło na znaczne powiększenie przestrzeni zewnętrznej przylegającej do strefy dziennej, wzmacniając jej relację z ogrodem i basenem. Jednocześnie zabieg ten umożliwił zachowanie istniejących okazałych drzew, które w połączeniu z nowymi nasadzeniami z czasem stworzą znacznie gęstszy i bardziej dojrzały ogród. Główne wejście do domu zlokalizowano od strony mniejszej i cichszej uliczki, zapewniając mieszkańcom domu poczucie prywatności.
Między strefą dzienną a częścią sportową zaprojektowano przestrzeń przejściową, która pełni rolę łącznika i jednocześnie sprzyja naturalnej wentylacji wnętrza. Jednym z kluczowych założeń projektu było skierowanie strefy nocnej na wschód, zapewniając bezpośredni kontakt z porannym światłem.
W części głównej dążono do uzyskania większej wysokości pomieszczeń. Formę całego założenia tworzą dwie niższe bryły, między którymi „wstawiono” większą kubaturę, odpowiadającą strefie dziennej. Ten centralny korpus wydaje się nieznacznie uniesiony – zabieg ten nadaje projektowi charakterystyczną tożsamość. Głęboki okap dodatkowo wzmacnia to wrażenie, sprawiając, że bryła zdaje się lekko „lewitować” nad przestrzenią, którą osłania.
Masywna, środkowa bryła pozwoliła na ukrycie w niej elementów konstrukcyjnych, dzięki czemu przestrzeń dzienna mogła zostać rozpięta na całej szerokości bez żadnych słupów pośrednich. Strefa dzienna staje się w ten sposób płynnym, ciągłym wnętrzem pozostającym w bezpośrednim kontakcie z posadzką zewnętrzną i taflą wody basenu – granica między wnętrzem a zewnętrzem praktycznie zanika, co podkreśla otwarty charakter domu.
We wnętrzu dominuje spójna, ciepła paleta kolorystyczna. Część ścian oraz wybrane elementy wyposażenia wykonano z dębu – drewno wprowadza naturalną teksturę i głębię. Połączenie drewnianych okładzin z odpowiednio dobraną barwą oświetlenia nadaje projektowi domowy i przytulny charakter.
Współpraca: María Masià, Pablo Camarasa, Ricardo Candela, Estefania Soriano, Sevak Asatrián, Susana León, Javi Herrero, Facundo Castro, Anna Alfanjarín, Laura Bueno, Toni Cremades, Susana León, David Cirocchi, Neus Roso, Nuria Doménech, Andrea Raga, Olga Martín, Víctor González, Pepe Llop, Alberto Bianchi, Andrea Blasco, Laura Palacio, Carlos Perez, Jovita Cortijo, Claudia Escorcia, Diana Murcia, Olga Fernández, Daniel Fenollosa, Andrés Jiménez, Álvaro Navarro, Diana Chilingaryan, Maria Barberá, Roberto Marañón, Martina Tomás, Paco Chinesta, Ana de Pablo, Sara Atienza, Valeria Fernandini, José María Ibañez





















